|
[
Surfanhänger ]
|
|
|
Mit
dem Fahrrad zum Spot –
wenn man diese Möglichkeit hat,....
|
|

Stephan Gölnitz beim Fotoshooting für "die
Surf"
|

Der Surfanhänger von hinten beim Fotoshooting
|

Mirco und Stephan
|
Mit dem Fahrrad
zum Spot – wenn man diese Möglichkeit hat, sollte man sie
auch nutzen! Allerdings benötigt man einen Anhänger für das
geliebte Zweirad, mit dem man sein Equipment an den Strand
transportieren kann. In der Surf-Magazin Ausgabe vom
November/Dezember sind einige Modelle aufgeführt, die diesen
Zweck erfüllen. Darunter ist auch meine eigene Konstruktion,
die im Sommer stets auf Norderney zum Einsatz kommt.
Wir wollen Euch
mit einigen Tipps und Tricks dabei helfen, selbst einen solchen
Surfanhänger zu bauen. An dieser Stelle müssen wir allerdings
erwähnen, dass es sehr schwer werden wird, das Modell 1:1 zu übertragen,
da wir z.B. das tragende Gerüst aus Gerätestangen gebaut
haben, die in genau dieser Form nur im Elektro-Fachhandel und
hier noch nicht einmal einzeln zu bekommen sind. Also ist bei
der Konstruktion des eigenen Hängers neben ein wenig
technischem Geschick auch noch etwas Kreativität gefragt!
Nicht desto
trotz wollen wir Euch den Aufbau meines Modells nicht
vorenthalten und hoffen, Euch so genügend Ratschläge und
Anregungen mit auf den Weg geben zu können, dass auch ihr auf
dem Weg zum Spot bald auf das Auto verzichten könnt.
|
|
Was
man braucht
- zwei 18er Räder
- eine Plastikkiste (ca. 80 cm lang,
bis zu 55 cm breit, 30 cm hoch)
- PVC-Platte als Deckel für die Kiste
- Gestänge mit quadratischem Profil 22 x 22 (2 mal 80 lang, 4
mal 30 lang, 1 mal 50 lang)
- 8 mal U-Profil-Gestänge 25x10 (ca. 30 cm lang)
- Eisen- oder PVC-Stange (je nach Länge des eigenen Boards ca.
2 m)
- Anhängerkupplung (im Fachhandel erhältlich)
- 3 Befestigungsschellen für die Eisenstange
- eine Querstrebe (ca. 40 cm lang)
- Diverse Schrauben sowie M6-Gleitmuttern
|
|

Bild 1 (linkes Hinterrad von Hinten)
|

Bild 2 (linkes Hinterrad von Oben)
|

Bild 3
|
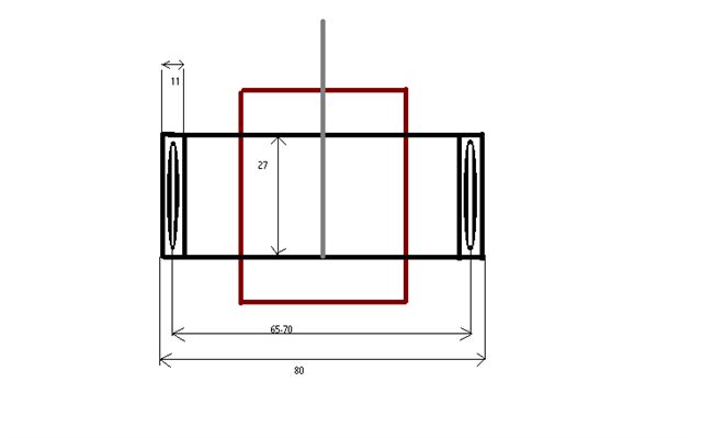
Vorgehensweise
Als erstes sollte man die Räder jeweils einzeln mit den
U-Profilen und den 30 cm langen Stangen verschrauben (s. Bilder
1 & 2). In den Abbildungen sind neben der gelben Kiste drei
Streben in Längsrichtung zu sehen, wovon jedoch eine überflüssig
ist. Anfangs befand sich das Rad zwischen den ersten beiden
Streben, was den Anhänger allerdings etwas wackelig werden ließ.
Wir haben festgestellt, dass der Abstand der beiden Räder
zwischen 65 und 70 cm liegen sollte, damit die ganze Sache nicht
zu wackelig wird. Die Kiste wird dann später direkt mit den
U-Profilen des Rades verschraubt. Auch sollte man tatsächlich
18er Räder verwenden, da auch zu große Räder die Kippgefahr
steigern.
|
|

Bild 4
|

Bild 5
|

Bild 6
|
Als nächstes werden die Querstreben verschraubt, was der
ganzen Sache schon mal etwas Stabilität verpasst (s. Bilder
3-5). Diese Streben sollten in etwa eine Länge von 80 cm haben,
damit der Anhänger ausreichend breit und somit kippstabil ist.
Auf der hinteren Strebe sollte noch eine weitere montiert und
ausgepolstert werden, damit das Brett später hoch genug liegt
und nicht mit dem Heck auf dem Asphalt schleift (s. Bild 7).
|
|

Bild 7
|

Bild 8
|

Bild 9
|
Nun kommt die
Verbindung zwischen Anhänger und Fahrrad ins Spiel. Hierfür
verwendet man eine Stange, deren Länge stark von der Länge des
eigenen Boards abhängt. Meine eigenen Bretter sich nicht länger
als 257 cm, wofür eine Stange mit einer Gesamtlänge von 2
Metern ausreicht. Die Stange kann aus Eisen (sehr stabil, auch für
den Transport von zwei Brettern und viel Equipment geeignet)
oder auch aus einem anderen Material wie z.B. PVC sein. Man kann
die Stange entweder biegen oder schweißen, so dass man
letztendlich drei verschieden lange Teilstücke hat (s. Bilder 8
& 9). Die Stange muss natürlich noch mittig mit den
Querstreben des Anhängers verbunden werden – hierfür
verwendet man entsprechend große Schellen (s. Bilder 10 &
11). Zudem muss am Knick der Stange oberhalb des Gepäckträgers
noch eine gepolsterte Querstrebe befestigt werden, auf der die
Brettspitze später aufliegen kann (s. Bild 8). Außerdem muss
noch eine Anhängerkupplung am Rad bzw. an der Stangenspitze
befestigt werden, um den Anhänger letztendlich auch bequem
ziehen zu können (s. Bild 12)
|
|

Bild 10
|

Bild 11
|

Bild 12
|
Zum Schluss wird noch die Kiste eingebaut und mit dem Gestänge
verschraubt. Wir haben an jeder Seite drei Schrauben verwendet
um die Kiste mit dem U-Profil-Gestänge bei den Rädern zu
verbinden. Im Inneren der Kiste sollte man die Schrauben
abkleben, um Neos oder auch andere Teile, die später in der
Kiste liegen, nicht zu beschädigen (s. Bild 13). Wenn man möchte,
kann man die Kiste auch noch mit einem Deckel versehen, was aber
nicht unbedingt erforderlich ist.
|
|

Bild 13
|

Bauzeichnung Seitenansicht (Bildvergrößerung)
|

Bauzeichnung Draufsicht (Bildvergrößerung)
|
Wenn man die
Kiste montiert hat, ist der Anhänger einsatzbereit! Der Übersicht
halber haben wir unserer Anleitung noch zwei einfache
Zeichnungen zugefügt, aus denen man noch einmal die wichtigsten
Maße entnehmen kann.
Wir wünschen
Euch viel Spass beim Bau eures eigenen Surfanhängers – und
falls die ein oder andere Schraube mal nicht so richtig passen
sollte, ist das auch kein Problem, da im Prinzip jede
Konstruktion ein Prototyp ist, und jeder Prototyp hat ja
bekanntermaßen seine Eigenarten!
|
|
Erfahrensberichte
können bei uns im Forum ausgetauscht werden >>
|
|
Text: M. Frebel
Foto: M. Frebel & M. Keller
|